

尼科法兰铜球阀概述:
法兰铜球阀在管道上主要用于切断、分配和改变介质流动方向。为延长球阀使用寿命,应作全开和全关使用。
尼科法兰铜球阀参数:
公称通径:DN20-DN100
公称压力:1.6Mpa,2.5Mpa
适用温度:-20℃~150℃
适用介质:水、油、气
阀体材质:黄铜,青铜
连接方式:法兰连接
传动方式:手柄
尼科法兰铜球阀特性:
①流体阻力小;
②关闭件能承受关闭时的高压差;
③浮动球式使启闭更加灵活;
④结构紧凑,体积小,节省安装空间。
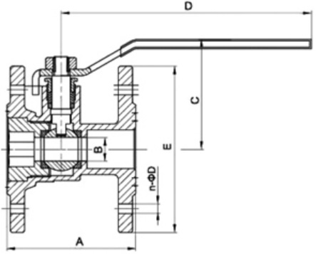
尼科法兰铜球阀尺寸:

主要连接外形和尺寸
单位:mm
通径
20
25
32
40
50
65
80
100
A
80
83
93
106
108
112
128
140
D
158
158
168
186
186
215
219
219
E
105
115
140
150
165
185
200
220
①管螺纹连接的球阀,安装旋紧时,应使管子与阀体端面垂直,并板钳该螺纹同侧端的六角或八角部位,不应扳钳另一端的六角或八角或其他部位,以免造成阀体变形或影响开启。
②内螺纹连接球阀,必须控制管端的外螺纹长度,以免管端螺纹过长,旋入时顶压球阀内螺纹端面,造成阀体变形而影响密封性。
③管螺纹连接的球阀与管端的螺纹相连接时,内螺纹可以是圆锥管螺纹,也可以是圆柱管螺纹,但外螺纹必须是圆锥管螺纹,否则会导致连接不紧而泄漏。
④法兰球阀上分度圆应与管道法兰上分度圆尺寸一致方能相配,两端管道中心应垂直于法兰球阀法兰面,否则会造成阀体扭曲而变形。
⑤管螺纹连接的球阀安装时,密封材料应清洁、干净。
⑥安装时注意球阀手柄启闭范围内不能有障碍物,如墙、管子、连接螺母等。
⑦球阀手柄与阀体方向平行时为开,垂直时为关。
⑧介质应不含颗粒、腐蚀性气体或液体。



