当前位置: 首页 > 产品展示 > 通用阀门 > 尼科排气阀
产品展示


尼科快速排气阀
详情信息
尼科NIKO(中国)办事处-江苏尼科阀业有限公司提供【快速排气阀】标准、图纸、原理、参数、认证、说明书。质量可靠,价格合理,售后优质。我们拥有专业的生产技术图纸和完整的技术服务方案,为用户提供一站式的系统解决方案。
尼科快速排气阀概述:
尼科快速排气阀用于管路上的较高点或有闭气的地方和水泵出口处,排除管线内的气体来疏通管道,达到正常工作。如不装排气阀,管道随时出现气阻,使管道出水容量达不到设计要求;其次,管道在运转时出现停泵、停电现象会产生负压引起管道振动或破裂,快速排气阀能迅速把空气吸入管内,防止管道振动或破裂。
当水进入管线内时,浮球停在球桶下部进行大量排气,当气排完时,水进入阀内通过球桶把球浮起到关闭,停止排气。管道在正常运转时自然会产生少量气体,这些气体会集中到管内上部到相当程度,阀内水位下降,浮球顺水下降气体从小孔排出。如出现停泵停电,管内水流空时,随时会出现负压,浮球顺水下降,打开小孔带动大孔进行大量补气,确保管道安全。
暖通系统及暖通空调系统在运行过程中,水在加热时释放的气体如氢气、氧气等带来的众多不良影响会损坏系统及降低热效应,这些气体如不能及时排掉会产生很多不良后果。诸如:由氧化导致的腐蚀;散热器里气袋的形成;热水循环不畅通不平衡,使某些散热器局部不热;管道带气运行时的噪声;循环泵的涡空现象。所以系统中的废气必须及时排出,由此可见运用自动排气阀的重要作用。
尼科快速排气阀参数:
公称通径:DN15-DN200
公称压力:1.0Mpa-1.6Mpa
适用温度:-20℃~90℃
适用介质:水、水和乙二醇混合液
阀体材质:铸铁、铸钢、碳钢、不锈钢
连接方式:法兰连接
尼科快速排气阀特性:
结构简单,性能稳定,安全可靠。
尼科快速排气阀概述:
尼科快速排气阀用于管路上的较高点或有闭气的地方和水泵出口处,排除管线内的气体来疏通管道,达到正常工作。如不装排气阀,管道随时出现气阻,使管道出水容量达不到设计要求;其次,管道在运转时出现停泵、停电现象会产生负压引起管道振动或破裂,快速排气阀能迅速把空气吸入管内,防止管道振动或破裂。
当水进入管线内时,浮球停在球桶下部进行大量排气,当气排完时,水进入阀内通过球桶把球浮起到关闭,停止排气。管道在正常运转时自然会产生少量气体,这些气体会集中到管内上部到相当程度,阀内水位下降,浮球顺水下降气体从小孔排出。如出现停泵停电,管内水流空时,随时会出现负压,浮球顺水下降,打开小孔带动大孔进行大量补气,确保管道安全。
暖通系统及暖通空调系统在运行过程中,水在加热时释放的气体如氢气、氧气等带来的众多不良影响会损坏系统及降低热效应,这些气体如不能及时排掉会产生很多不良后果。诸如:由氧化导致的腐蚀;散热器里气袋的形成;热水循环不畅通不平衡,使某些散热器局部不热;管道带气运行时的噪声;循环泵的涡空现象。所以系统中的废气必须及时排出,由此可见运用自动排气阀的重要作用。
尼科快速排气阀参数:
公称通径:DN15-DN200
公称压力:1.0Mpa-1.6Mpa
适用温度:-20℃~90℃
适用介质:水、水和乙二醇混合液
阀体材质:铸铁、铸钢、碳钢、不锈钢
连接方式:法兰连接
尼科快速排气阀特性:
结构简单,性能稳定,安全可靠。
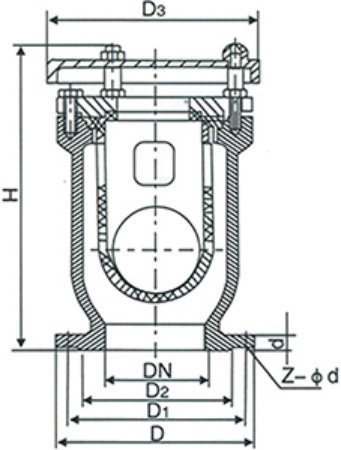
尼科快速排气阀尺寸:

主要连接外形和尺寸 单位:mm
注:此外形尺寸为1.6Mpa压力排气阀,如需更高压力尺寸图纸,敬请来电来函咨询。
通径
50
80
100
150
200
H
270
300
310
395
455



